Описание рулонных жалюзи зебра
Жалюзи зебра — это разновидность рулонных штор с двойным слоем ткани. Ткань имеет горизонтальные полоски, одна из которых полупрозрачная, а другая плотная. Полотно ткани скручиваясь в рулон на вал открывает оконный проем, раскручиваясь закрывает. С помощью этой системы можно добиться точного регулирования просвета, чего нельзя сказать об обычных рулонных шторах. Регулировка просвета осуществляется перекрытием между собой плотной и просвечивающейся полос ткани при скручивании или разматывания полотна шторы. Система относительно новая, но уже смогла заработать много положительных отзывов у потребителей. Еще одно название этой системы — Жалюзи зебра День ночь, но существуют и другие системы жалюзи с одноименным названием — это кассетные рулонные шторы с пружинным механизмом Уни-2, сдвоенные рулонные шторы день ночь и жалюзи плиссе с двойным полотном ткани день ночь.
Виды рулонных штор
Тканевые роллеты представляют собой расправленное тканевое полотно, наматывающееся на помещённый над окном вал. Низ полотна опускается и поднимается в зависимости от потребности в притенении. В продаже имеется несколько видов тканевых роллет, отличающихся размерами, местом крепления и принципом монтажа.
Классические открытые
Система классических открытых штор лучше всего подходит для широких проёмов, панорамных окон и эркеров
Крепятся на стену, потолок, в проём. Двигаются при помощи цепочного или пружинного механизма.
Преимущества:
- дёшевы, стоимость зависит от площади полотна;
- закрывают сразу большую площадь остекления;
- отнимают минимум пространства у помещения.
Недостатки:
- в опущенном виде мешают открыванию окна;
- быстрее пачкаются пылью;
- требуют сверления стен или потолка.
Кассетные UNI-шторы закрытые
Вал с тканевой роллетой в пластиковом коробе под цвет оконной рамы
Вал с намотанным полотном скрыт в пластиковом коробе цвета оконной рамы, на которую крепится. Регулировкой полотна управляет пружинный или цепочный механизм.
Преимущества:
- короб и направляющие сливаются с контуром оконной рамы, в свёрнутом виде шторы незаметны;
- направляющие устанавливаются на штапике, полотно почти прилегает к стеклу;
- не мешает открыванию окна;
- не отнимают площадь подоконника;
- можно использовать на мансардных окнах;
- можно устанавливать одновременно два короба в верхнем и нижнем положении.
Недостатки:
самая дорогая конструкция тканевых роллет
MINI-рольшторы открытые
MINI-рольшторы открытые монтируются на оконную раму или створку
Монтируются на оконную раму или створку. Регулируются цепочным механизмом.
Преимущества:
- крепятся без сверления оконного профиля;
- направляющими служит натянутая невидимая лёска;
- не мешают открыванию окна;
- не занимают площадь подоконника.
Недостатки:
- требуют аккуратного обращения;
- клей в жару может «поплыть»
Рулонные шторы день-ночь плавно регулируют уровень естественного освещения
Решая, какой вид рольштор выбрать для конкретного помещения, следует учитывать дизайн интерьера, величину и положение окон.
Пространство глубоких оконных проёмов и подоконников обычно используется для декоративных и функциональных целей
В них рекомендуется устанавливать кассетные рольшторы, занимающие минимум пространства и не отвлекающие на себя внимание.
Неглубокие проёмы без подоконника и узкие окна лучше декорировать шторами над проёмом. Длинный карниз и широкое полотно под цвет стен визуально увеличат размер окна.
Классификация рулонных штор
Все современные рулонные шторы можно достаточно четко классифицировать по:
- конструктивным особенностям встроенного механизма;
- свойствам и особенностями шторного полотна;
- и целевому назначению.
Существует несколько групп рулонных штор:
- Открытые. Это самые простые в конструктивном плане шторы. У них открытый вал (или рулонная катушка), на который и накручивается полотно. При этом портьера свободно свисает, а к нижнему ее краю крепится специальный утяжелитель, обеспечивающий ровное, плотное и красивое прилегание материи к окну. Открытые рулонные шторы подлежат монтажу на проем или же непосредственно на оконную конструкцию. Их можно также прикрепить к потолку, стене или раме.У рулонных штор с конструкцией открытого типа не имеется направляющих — фиксация материи на створке осуществляется при помощи натянутой определенным образом лески или (реже) пластиковой цепочки.
-
Закрытые. Их еще называют рулонными шторами кассетного типа. У таких конструкций встроенный управляющий механизм закрыт специальным блоком-кассетой. К штапику же крепятся направляющие из алюминия или прочного пластика. Таким образом, просвет между профилем окна и шторой оказывается скрытым, и нет никакого провисания даже при наклонном открывании створок.Шторы рулонные кассетного типа можно ставить прямо на пластиковый профиль (оконный), а также потолок или стену (точно так же, как шторный карниз).
Нижний край таких штор утяжелен, а движение осуществляется с помощью цепочки, встроенной в подъемный механизм. - Для мансардных окон. Так называется один из видов кассетных рулонных штор, который специалисты выделяют в отдельную подгруппу. Такие шторы устанавливаются прямо на оконную створку. А за их движение отвечает особая пружинная механизированная система.
Как правило, мансардные конструкции — конструкции небольших размеров, управляемые вручную. Но вообще существуют и пружинный, и цепочечный механизмы, управляемые дистанционно. Ими также можно оснастить любые рулонные шторы, изготавливаемые на заказ по индивидуальному ТЗ.
Шторы с электроприводом очень выручают пользователей в ситуациях затрудненного прямого доступа к рулонным конструкциям, а, точнее, к их механизмам. Например, в растительных оранжереях, плавательных бассейнах или же в помещениях с окнами, так называемого, «второго света».
Описание и характеристики конструкций
Для начала следует разобраться, что представляют собой рулонные шторы. Конструкция состоит из полотна, которое наматывается на вал и фиксируется на кронштейнах. В нижней части ткани крепится утяжелитель, который обеспечивает её равномерное положение. Как и все виды изделий, применяемые для декорирования помещений, эти конструкции обладают своими преимуществами и недостатками:
- Роллеты выглядят привлекательно, различными производителями предлагается большой выбор фактур и расцветок. Например, брендом Decofest представлены однотонные модели и с принтом, из жаккарда, льна и бернаута, с вышивкой и имитирующие замшу, а также ажурные роллы.
- Установка рулонных штор на пластиковые окна осуществляется довольно быстро, в том числе и своими силами. Но также легко, если есть необходимость, их можно и снять.
- Полотно штор отлично выдерживает воздействие ультрафиолета и не выгорает со временем.
- Уход за покрытием — прост и не занимает много времени.
- С помощью установки рулонных моделей можно добиться максимальной защищенности от любопытных посторонних глаз и поступающего с улицы солнечного света.
- Простая регулировка светового потока позволяет выбрать наиболее удобный для присутствующих режим.
- Если закрепить рольштору на окне — место на подоконнике можно использовать для размещения различных предметов интерьера или, например, цветов.
- Материал, из которого изготовлено полотно, на заводе пропитывается специальными средствами, не позволяющими пыли проникать глубоко в волокна ткани.
- В зависимости от настроения или времени года можно менять ткань в креплениях.
- Установить роллеты допускается в помещениях различного назначения и не только в частных строениях. С помощью рулонных штор можно декорировать комнаты и балконы, дверные проёмы и шкафы, кабинеты и конференц-залы, номера в отелях и залы в ресторанах.
- Комбинирование рольштор с традиционными гардинами и невесомым тюлем помогает создать интересный декор. Сочетание стильных занавесок и функциональными рулонными моделями позволяет внести в интерьер уют.
Как бы ни был прост уход за рулонными конструкциями, периодически необходимо проводить уборку. Для того чтобы роллеты в течение долгого времени сохраняли свою привлекательность, существует несколько методов:
Примерно раз в неделю ткань следует протирать влажной тряпкой от пыли. Не возбраняется использовать и пылесос.
При появлении на ткани пятен грязи можно воспользоваться жёстким канцелярским ластиком. Не сильно надавливая на полотно, нужно потереть им загрязнение.
Грязные шторы допускается стирать (вручную). Для этого в ванну следует налить воду, добавить моющее средство, не содержащее агрессивных компонентов. Полотно размещается в ванне. При помощи круговых движений мягкой губкой раствор наносится на ткань
После стирки штору нужно тщательно прополоскать, полностью удалив моющее средство.
При возникновении серьёзных проблем требуется обратиться в химчистку.
Минимизировать скопление пыли поможет периодическое проветривание помещения.
При покупке важно ознакомиться с инструкцией к шторе, где указывается, какими моющими средствами рекомендуется пользоваться.
Несмотря на защитную пропитку, при установке рольштор на кухне вряд ли получится избежать появления на полотне пятен от копоти и жира, поэтому при приготовлении пищи рекомендуется поднимать шторы или использовать для крепления в этих помещениях конструкции с синтетическими материалами.
Следует помнить, что использование стиральной машины для таких штор запрещено.
Следует изучить еще один момент, выбирая рулонные шторы — это размеры конструкций. При анализе вариантов требуется учитывать не только площадь декорируемого проёма, но и способ крепления.
При монтаже мини-систем, в которых полотна намотаны на вал, имеющий диаметр 15 мм, нужно ориентироваться на максимальные габариты (длину и ширину), не превышающие 200 см. В больших конструкциях, в которых вал имеет диаметр 70 мм, можно рассчитывать на ширину в районе 3500 мм. Если постараться, есть возможность приобрести и продукцию шириной в пять метров. Стандартной длиной полотна считаются размеры 1,6, 1,75 и 2,2 м.
Но следует помнить, что большинство моделей имеют размеры, соответствующие габаритам типовых оконных конструкций. Если в помещении установлены окна, изготовленные по индивидуальному заказу, придётся обращаться за помощью в профильные компании.
Виды рулонных штор по типу системы
В зависимости от используемой системы различают следующие виды рулонных штор.
— Самой простой системой является открытая. Она оптимальна при оформлении больших окон (шириной до 6 м и более), например панорамных. Естественно, одного полотнища будет недостаточно, поэтому используется сразу несколько отрезков, которые попарно соединены.
— Несколько более сложную конструкцию имеют системы с кассетным креплением. Хотя они, и несколько дороже, но зато, по сравнению с открытыми, имеют определенные важные преимущества, например:
- в собранном виде они смотрятся более аккуратно,
- возможно также крепить к потолку.
В комплект могут входить также тросовые направляющие, по которым двигается полотно.
За счет них полотнище максимально плотно прилегает к окну и обеспечивает наилучшее затемнение помещения, можно сказать, полное, если установить рулонные светонепроницаемые шторы Блэкаут.
Подобная фиксация особенно удобна, если окна балкона часто открывают для проветривания или, наоборот, когда в помещении работает кондиционер, она не дает ткани развиваться от малейшего дуновения воздуха, словно флаг.
В этом случае профиль (с любой стороны) или профили размещают сбоку на оконной створке (части проема) или стене.
Преимущества и недостатки
Чтобы решить, подходят ли рулонные шторы для применения в вашей кухне, необходимо изучить их достоинства и недостатки. Итак, начнем.

Система для рулонных штор закрытого типа
- Возможность установки конструкции несколькими способами позволяет использовать их для оформления самых сложных и нестандартных оконных проемов.
К тому же ими оборудуют окна не только в жилых помещениях, но также на балконах, лоджиях и даже дверных проемах.
- Регулируемая длинна. Такие занавески можно зафиксировать на любой высоте, что позволяет защитить комнату от попадания интенсивного солнечного света, но в то же время оставить подоконник свободным. Его, как правило, используют в качестве полки для цветов и других элементов декора.
- Превосходный внешний вид. Рольшторы выглядят стильно и современно. Кроме того, они отлично гармонируют с традиционными портьерами и тюлем. В классическом стиле можно применять их вместе с ламбрекеном. Днём вы всегда сможете спрятать роллшторы за роскошную драпировку, а вечером распустить полотно, полностью скрыв помещение от любопытных взглядов прохожих. Согласитесь, это не только красиво, но и весьма удобно.

Ухаживать за рулонными занавесками довольно просто
- Широкий ассортимент. Благодаря наличию огромнейшего количества разнообразных вариаций орнаментов, расцветок и принтов, каждый сможет найти идеальное изделие для своего интерьера. К тому же даже недорогие модели выглядят эстетично и модно. Убедитесь в этом сами, просмотрев фото рулонных штор в интерьере кухни.
- Улучшенные ткани. Шелк, хлопок, полиэстер, бамбук – это далеко не полный перечень материалов, из которых могут изготавливаться роллеры. Какую бы ткань вы не выбрали, обязательно уточните у продавца, была ли она обработана специальными составами. Например, «зеркальная» пропитка обеспечивает полное отражение солнечных лучей от поверхности. Также существуют пропитки, которые предотвращают скапливание пыли, выгорание, а также защищают ткань от воздействия влаги и высоких температур.

Чертёж рулонных штор с электроприводом
- Практичность. Ухаживать за рулонными занавесками довольно просто. Сухую чистку можно выполнить при помощи пылесоса с небольшой насадкой или обыкновенной мягкой щеткой для мебели. Если изделие сильно загрязнилось, снимите его с карниза, уберите утяжелитель и постирайте вручную. Некоторые ткани можно очистить в стиральной машинке, но температура не должна превышать 30-40°С. За сохранность дополнительных элементов механизма вы можете быть спокойны, так как все они защищены специальными крышками, благодаря которым пыль и грязь не попадают на них.
- Множество вариантов управления. Использовать электропривод, шнур или пружинную систему – решать только вам. Выбирайте для себя наиболее удобный способ регулировки, учитывая особенности размещения оконного проема.
- Защита мебели. Плотный материал, обработанный пропитками, предотвращает попадание прямых солнечных лучей на предметы декора и мебель, поэтому они не выгорают. Один раз потратившись на качественные занавески, вы значительно сэкономите на реставрации и замене потерявшей цвет мебели.
Естественно, нельзя забывать и о недостатках, которые, без сомнений, имеет каждое изделие.
- Если в вашей квартире установлены старые деревянные окна, открывать форточку будет не очень удобно. Рольшторы лучше всего подходят для оформления пластиковых окон.

Не рекомендуем экономить на роллерных шторах, ведь качественное изделие имеет длительный срок эксплуатации, а значит прослужит вам долгие годы
- Некоторые модели могут иметь ненадежный механизм скручивания, поэтому он будет часто ломаться. Не рекомендуем вам экономить на роллерных шторах, ведь качественное изделие имеет длительный срок эксплуатации, а значит прослужит вам долгие годы.
- Для некоторых стилей интерьера применение рулонных штор будет неуместно. Хотя, если вы обратитесь к услугам профессиональных дизайнеров, они смогут выполнить эксклюзивные изделия, которые превосходно впишутся даже в такие стили как барокко и ренессанс.
Как видите, список достоинств намного больше.

Для северных кухонь уместной будет тёплая гамма, поэтому отдайте предпочтение золотым, оранжевым или кремовым занавескам
Да и недостатки легко нивелировать, обратившись за помощью к специалистам.
Механизмы регулировки рулонных штор
Изделия рулонного типа крепятся в верхней части оконного проема и наматываются на продолговатый валик удобным подъёмным механизмом. Штанга, на которую наматывается рулон, свободно вращается, легко сворачивает и разматывает ткань рулоном, фиксируя на нужной высоте.
На пластиковых окнах устанавливают UNI 1 – бюджетный вариант, UNI 2 – схема для окон любого типа. «Ловолайт» – система для широкого формата окон (загородные дома, офисы).
В готовых конструкциях используют 2 способа управления:
- Открытый фасон (без направляющих), где полотнище легко накручивается на подвижную опору. Эту штангу можно обрезать до необходимого формата окна.
- Закрытая разновидность, где работает кассета с боковыми направляющими – максимально защищает от бокового света.
На ночь можно полностью опустить шторку, в полдень достаточно закрыть верхнюю треть окна. Уголковая фиксация и грузик внизу полотнища обеспечат закрывание стекол.
В открытых моделях движение обеспечивает толстая леска, штора не отходит от стеклопакета даже в режиме проветривания.
Пружинный держатель внизу – для мансардных и чердачных окон, когда важна фиксация нижней части рулонных шор под наклоном.
Разновидности рулонных штор
Классификация наиболее популярных разновидностей:
- Комбинированная рулонная штора «день-ночь» – модель кассетного типа на пружинном управлении. Два типа ткани – светопроницаемая и плотна «ночная», поэтому окна по-разному закрывают от света в определенное время суток.
- Мини-шторы – компактный вариант, который предполагает некоторую свободу смещения шторы. Преимущество – установка в любой оконный проем, включая монтаж без сверления. Рулоны наматываются на штангу, которая вращается от свисающей цепочки.
- Кассетные рулоны, где основа находится в алюминиевом коробе, полотно перемещается, благодаря боковым направляющим – оно не провисает.
Шнурок или цепочка – очень удобный способ регулировки. Существуют более сложные типы управления, например, карнизы на электроприводе, где каждое полотно автономно поднимается нажатием кнопки на пульте ДУ. Пружинный держатель используется на мансардных или наклонных окнах.
Высокое качеств гарантируют компании «Эскар» и «Уют» (Россия), PRiS. ISOTRA(Чехия) и DELFA (совместное производство). Особого внимания достойны импортные бамбуковые шторы, сворачивающиеся рулоном.
В каких интерьерах применяются рулонные фасоны?
Хотя рулонные шторы достаточно универсальные, они должны гармонировать со стилистикой интерьера и функциональностью помещения.
Материалы с особыми пропитками могут не только фильтровать свет, но и защищать комнату от жары и холода
Это важно для регионов с частыми перепадами температур
В ванной, санузле или душевой с конным проемом рекомендуется установить наглухо роль-штору из светопроницаемой ткани, которая пропускает много света, но не просвечивается. Желательно выбирать пленочные материалы с водозащитными свойствами.
Для кабинетов и офисных помещений нужны практичные варианты без пестрой расцветки – только строгий лаконичный дизайн. Ткань с антистатическим эффектом упрощает уход – она отталкивает пыль.
Для комнаты подростка и детской спальни лучше подбирать «дышащие» ткани, которые хорошо сочетаются с гардинами и портьерами. «Детская» расцветка способна оживить скромный интерьер.
Прихожая в квартире редко имеет окна, зато в частных домах нередко используют застекленные фасады, панорамные или французские окна. Для регулировки большого формата окон необходимо подбирать специальное оборудование на электроприводе, где рулонные шторы управляются дистанционно.
Полупрозрачные ткани подходят для гостиной
Важно подобрать ткань такой расцветки или фактуры, которая превосходно сочетается с другим текстилем
В спальне устанавливают шторки, скручивающиеся рулоном, когда необходимо фильтровать избыточный солнечный свет. Подойдут плотные материалы – с ними можно обойтись без ночных портьер. Достаточно красивой гардины на всю стену и рулонных штор на формат стекол оконного проема.
Рулонные шторы во многом напоминают горизонтальные жалюзи с подобным способом регуляции высоты полотен. Инновационные изделия предпочитают профессиональные дизайнеры, напоминая, что это стильно, удобно и красиво. Специальные материалы обладают особыми характеристиками, которые упрощают уход за оконным убранством.
Популярность данной разновидности быстро растет, вытесняя морально устаревшие занавески для окон разного типа.
Виды кассетных штор
Выбор ткани для полотна кассетной шторы – очень ответственный шаг. Руководствоваться при этом нужно не столько эстетической составляющей, сколько такими параметрами, как долговечность, износостойкость и универсальность. Современный рынок товаров и современные производители предлагают к выбору целую массу полотен из различных материалов – варьируется при этом состав ткани, её плотность, что сказывается в первую очередь на показателях освещенности, а во вторую – на эстетике изделия.
Самые распространенные варианты для выбора в качестве материала для кассетных штор:
- Хлопок,
- Лён,
- Нейлон,
- Полиэстер,
- Ткани из смеси натуральных и синтетических волокон.
Современные производители, заботясь о качестве своего товара, оснащают свои полотна для кассетных штор специальными покрытиями, которые призваны снимать статическое электричество и отталкивать грязь и пыль. Это существенно упрощает уход за изделием, продлевая срок его службы в вашем доме.
По степени «затеняемости» помещения полотна для кассетных штор делятся на несколько групп:
- Проницаемые полотна – они изготавливаются, как правило, из прозрачных и полупрозрачных тканей, а, следовательно, пропускают солнечный свет. Такой тип полотна защитит вас от бликов солнца, но не станет препятствием для солнечного света.
- Затеняющие полотна – благодаря плотности материалов такие шторы рассеивают солнечный свет, делая его более приглушенным. В целом комната с затеняющими полотнами на кассетных шторах освещается частичным образом.
- Полотна «день-ночь» — позволяют регулировать степень освещённости комнаты, поскольку состоят сразу из двух тканых полотен – из плотного материала и из прозрачной или полупрозрачной ткани. Таким образом, у вас будет возможность менять количество попадаемого в помещение света при помощи варьирования конструкции.
- Blackout – ныне популярные сегодня шторы блэкаут завоевали популярность у населения. Степень пропускания света в помещение у этих штор очень мала, настолько надежно полотно в этом плане. При помощи полотна блэкаут вы сможете создать полностью затемненное помещение. Кроме того, некоторые модели обладают даже звукоизоляционными свойствами.

Автоматические
Автоматические жалюзи зебра
Автоматические рулонные шторы зебра день ночь — Можно автоматизировать любую из свободновисящих и кассетных рулонных штор, с одной лишь разницей, что на систему Мини, Уни-1 и Уни-2, электропривод будет устанавливаться вместе с блоком аккумуляторов и радиоуправлением внутрь вала. Это делается для того, чтобы не подводить провода к шторе, так как она установлена на створке пластикового окна и разумеется проводка будет портить внешний вид, и мешаться открыванию распашной створке окна.
На систему макси, привод так же устанавливается внутрь вала. Он значительно мощнее, но и дешевле, так как в этом случае отсутствует блок АКБ, а электричество поступает через блок питания от сети 220 вольт вашей квартиры.
Управление шторами может быть с пульта ДУ, клавиши на стене, смартфона или системы «Умный дом»
Лучшие производители
В перечень лучших, по мнению покупателей, производителей рулонных штор включены такие компании как:
- Уют. Крупная российская компания по производству штор, жалюзи и карнизов, действующая на рынке более 30 лет. Пользователями отмечается регулярное обновление ассортимента, разнообразие используемых материалов, универсальность изделий.
- Отечественная компания, история которой началась более 25 лет назад. В продукции предлагаемой покупателям отдельное место занимают солнцезащитные шторы рулонного типа PRiS.
- ISOTRA. Чешская фирма, образованная в 1992 г. Использование современных технологий, инновационные решения, а также высокое качество выпускаемых изделий, способствовали развитию компании и росту популярности ее продукции.
- Этот российский производитель предлагает покупателям широкий ассортимент оконного декора с различными механизмами крепления и низкой светопроницаемостью.
- DELFA. Совместное белорусско-германское предприятие, специализирующееся на продукции оконного декорирования, высокое качество которой неоднократно подтверждалось.
- Фирма является производителем различных видов штор и обладает богатым ассортиментом, что позволяет практически каждому найти то, что необходимо именно ему.
- Эскар. Компания специализируется на изготовлении продукции оконного декора. Постоянное обновление материала для полотен, широкий выбор размеров изделий, способствует росту популярности продукции этого бренда на рынке.
Как повесить открытую рулонную штору MINI на оконную раму
Инструменты
Монтажные инструменты понадобятся только для рольштор, крепящихся на раме саморезами:
- Дрель с тонким сверлом.
- Шуруповёрт.
- Набор отвёрток.
- Карандаш.
Порядок работы такой же, как и при креплении рольшторы к стене с той разницей, что перфоратор, отбойники и дюбели не понадобятся. Большинство моделей MINI фиксируются без сверления оконного профиля.
Порядок работы
- Извлеките штору и комплектующие из упаковки.
- Соберите рулон: вставьте цепочный механизм в вал с одного конца и заглушку с другого, прикрепите кронштейны к валу.
- Приложите вал к раме, отцентруйте относительно стекла.
- Карандашом отметьте внешние стороны кронштейнов.
- Снимите кронштейны с вала.
- Обезжирьте места крепления. На профиль по меткам прикрепите отрезки двусторонней вспененной клеящей ленты.
-
Для рулонов, монтирующихся на створки, соедините кронштейны с зажимом.
- Приклейте к лентам кронштейны, сильно прижимая детали к профилю.
- Вставьте рулон в кронштейны.
- Если модель с направляющей лёской, проденьте концы лёски в отверстия кронштейнов, завяжите двойным узлом, разрежьте ровно посередине.
- Вставьте рулон в кронштейны полотном в сторону окна.
- Вставьте фиксаторы вала
-
Свободные концы лёски протяните сквозь петли на концах отвеса ткани.
- Растяните полотно до низа. Приклейте на двусторонний скотч к нижнему профилю крепежи для направляющей лёски. Вставьте свободные концы лёски, натяните их регулировочным винтом
- Прикрепите ограничители на цепочку в крайнем открытом и крайнем закрытом положении полотна.
- Для штор на створке с цепочным механизмом приклейте фиксатор цепочки к профилю на высоте 10 см от подоконника.
На окнах небольшой высоты можно обойтись без направляющей лёски. А чтобы закрытая штора не отходила от окна в положении проветривания, следует использовать магнитные фиксаторы. Их крепят на нижнем профиле рамы и на отвесе полотна.
Чтобы открыть такую штору, не забывайте сначала разъединить магниты, а затем тянуть за цепочку.
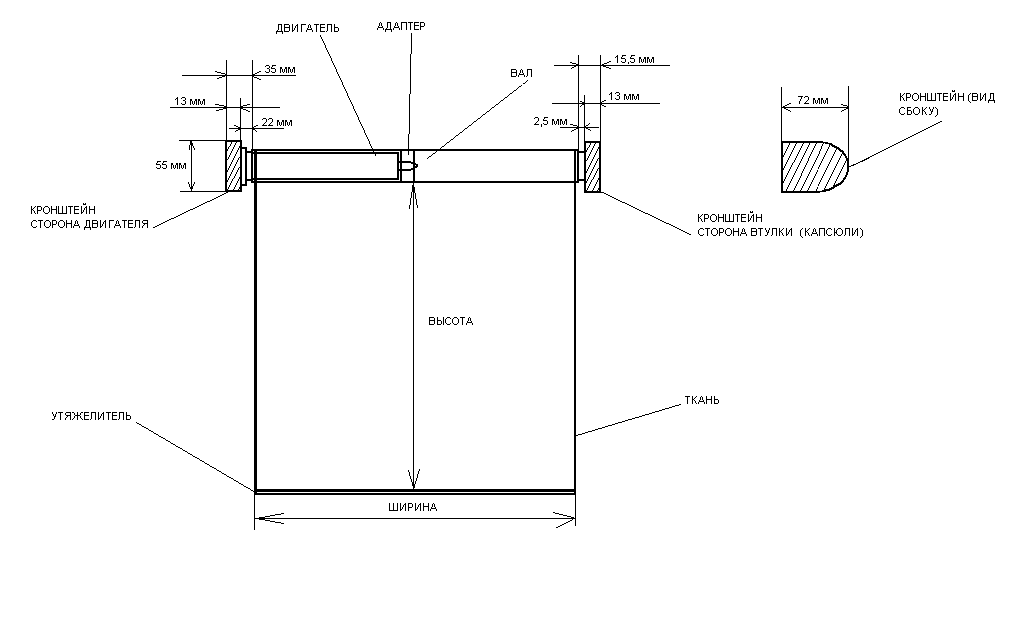
Особенности штор зебра
Шторы зебра представлены двумя видами ткани, одна из которых прозрачна, а другая нет. Способ работы механизма достаточно прост. Когда полосы первого вида поднимаются, полосы второго- опускаются.















В результате чего происходит образование зазора, который в зависимости от действия либо увеличивается, либо уменьшается.


В конструкцию изделия входят два слоя. Вал приводит их в движение и заставляет наматываться, совершая движения параллельно друг другу.

Когда непрозрачные полосы совмещаются, в комнате становится темно. Когда непрозрачные полосы раскрываются, в комнате становится светло.

Рулонная штора DDA миниролло (мокко)
Если вы ищете простую в эксплуатации оконную штору, то DDA миниролло (мокко) непременно оправдает ваши ожидания. Она имеет легкие фильтрующие римские оттенки, которые создают более теплое и комфортное ощущение в любом доме. Благодаря современному дизайну, который имеет беспроводную функцию, вы будете управлять им без каких-либо затруднений. Кроме того, это обеспечит безопасность для детей и домашних животных.
Мягкая современная отделка DDA миниролло (мокко) дополнит большинство декоров, а также найдет свое место в офисах и общественных местах
Вы можете установить ее в гостиной, спальне, игровой комнате, кухне и ванной комнате, получив полную конфиденциальность, что очень важно при наличии любопытных соседей. Эта модель не выгорает и не склонна притягивать пыль, а потому не требует частого ухода и может прослужить много лет
Средний рейтинг — 4,8
Средняя цена — 1160 рублей
Плюсы:
- Легко устанавливать и при необходимости снимать.
- Очень удобна в использовании.
- Имеет привлекательный вид.
- Хорошо затеняет комнату.
Фото рольштор в интерьере комнат
Практичность и функциональность данной конструкции позволяет использовать ее в любых по назначению помещениях.
Кухня
Эргономичные модели, как нельзя лучше соответствуют этому помещению. Широкий выбор фактур и расцветок моделей, позволяет выбрать для любой кухни подходящий вариант.
Гостиная или зал
Выбор роллетных штор полностью зависит от основной стилистики гостиной. Различные стильные модели отлично вписываются в интерьер и делают его уютным и очень модным.
Для спальни предпочитают полотна из более плотных или светоотражающих тканей в спокойных пастельных тонах.
Детская
Яркие роллеты типа blackout, или полотна украшенные оригинальными рисунками, соответствующими общему стилю комнаты, станут оригинальным декором в детской для мальчика, девочки или в комнате подростка.
Для беседок и веранд
Легкие, не громоздкие, уличные рулонные шторы являются практичным и стильным вариантом для оформления беседки, террасы или веранды на даче.
На фото веранда с полупрозрачными римскими шторами темного оттенка.
Туалет
Здесь такие шторы будут уместны, не только в качестве декора окна, но и как отличный маскировочный вариант для сокрытия ниш, водосточных или канализационных труб за унитазом.
Ванная
Для ванной с оконным проемом, роллеты станут наилучшим решением, они защитят комнату от посторонних взглядов и станут красивым и лаконичным оформлением окна.
На фото интерьер ванной комнаты и рулонные занавеси на створках окна.
На саморезы
Чуть более сложный, но наиболее надежный тип крепления. Для его реализации потребуется:
- измерить, на каком расстоянии друг от друга должны располагаться кронштейны с учетом вставленной бобины;
- прислонить один из них к оконной раме в месте, где он должен находиться;
- прикрепить его к окну с помощью саморезов;
- проделать то же самое с другой запчастью;
- вставить бобину;
- прикрепить к занавеске утяжелитель.
Чтобы шурупы легче вкручивались, можно сначала ввинтить их без крепежа. Для этого кронштейн прислоняют к раме в нужном месте, отмечают места сверления, снимают деталь и просверливают отверстия там, где надо. После крепят саму деталь.
Источник
Установка со сверлением.
2.1. Отломать от накидных регулируемых кронштейнов верхнюю часть. Просверлить по два отверстия диаметром 3 мм на выступах каждого кронштейна.
2.2. Вставить кронштейны MINI в накидные кронштейны. Отверстия должны совпасть.

2.3. Разметить предполагаемые места крепления кронштейнов. Кронштейны должны быть установлены горизонтально. Прикрутить кронштейны шурупами так, чтобы выступы у кронштейнов накидных для крепления дополнительного профиля располагались внизу.
2.4. Установить вставки в механизм управления и в заглушку в трубе. Вставить изделие в кронштейны. Рулон ткани должен быть виден. .
Особенности конструкции двойных штор
Конструкция немногим отличается от устройства и элементного состава обычных рулонных штор. Барабан расположен вверху и предназначен для наматывания на него ткани. Для плотного прилегания ткани к раме используются направляющие и утяжелители. По способу крепления двусторонняя «зебра» имеет такие же модификации, как и все рулонные шторы.
- Стандартная имеет усиленный вал и позволяет крепить модели большой ширины из тяжелых тканей на стену или на потолок.
- «Мини» (mini) – недорогая конструкция для пластиковых окон с открытым барабаном.
- «Уни» (uni) – практичная универсальная модель, у которой барабан спрятан внутрь закрытого короба, крепится на створки пластиковых окон с помощью саморезов или без сверления.
Детали конструкции «день и ночь» выполняются из прочного пластика или алюминия в зависимости от вида штор и способа крепления. С помощью цепочного механизма можно самостоятельно регулировать степень освещенности в комнате. Для параллельного движения используется цилиндрический утяжелитель, который заложен в нижнюю петлю полотна. При регулировке освещенности полотно просто скользит по цилиндру, а при поднятии или опускании шторы утяжелитель натягивает ткань.
Макси
Рулонные шторы зебра макси
Жалюзи на окна зебра системы макси — это те же самые свободновисящие рулонные шторы зебра мини, только более внушительных размеров. Для их изготовления могут применяться валы большего диаметра, начиная с 25 мм и заканчивая свыше 100 мм, при использовании которых можно закрывать весьма большие пролеты оконных или дверных проемов. И в этом случае ширина изделия будет ограничиваться шириной рулона полотна ткани, которая зачастую составляет не более 3 метров. Так же не забудьте посмотреть какие ткани используются при изготовлении.
Так как изделие получается громоздким, то рекомендуется его устанавливать в специальную шторную нишу, чтобы не было видно рулона с тканью и весьма больших прочных кронштейнов.
Кассетные рулонные шторы Зебра на пластиковые окна
Кассетные рулонные шторы Зебра — это системы рулонные жалюзи, которые могут устанавливаться только на створки пластикового окна и никуда больше. Именно для этого они спроектированы и отлично справляются со своими задачами.
Уни-1




















