Дымогенератор из подручных материалов
Существует множество конструкций агрегата. С верхним и нижним, внутренним и внешним узлом эжекции, с расширяющей емкостью для дополнительного охлаждения дыма и его очистки. Рассмотрим создание дымогенератора на примере двухкамерной конструкции с внешним эжектором.
Для установки понадобятся:
- две трубы;
- две полдюймовые трубки по 7−10 см каждая;
- тройник;
- соединительный угловой переход;
- пара крышек под диаметр емкостей;
- гайки.

Верхняя часть трубы закрывается съемной крышкой. На 3 см от нижнего края устанавливаем решетку, к примеру, дно банки с отверстиями. Из трубы такого же диаметра делаем чашу высотой 10−20 см, которая послужит сборником золы. Она должна герметично прилегать к камере и крепиться к ней по бокам либо болтами, либо защелками.
Непосредственно перед зольником сверлим отверстие диаметром 8 мм для розжига щепы, с обратной стороны чуть выше — отверстие под имеющуюся в наличии трубу (например, 3−4- или 0,5-дюймовую). Для удобства очистки лучше производить соединение с помощью гаек. Чтобы опилки и нагар из камеры не попадали внутрь сгона, на его конце крепится угловой соединитель.
Посередине переходника монтируется тройник, к нижней части которого прикручивается банка для сбора конденсата и смол. Второй конец соединяется с трубой такой же длины и диаметра, как камера сгорания. Она послужит охлаждающим и дополнительным очистительным узлом. На нее крепится крышка со встроенным эжекторным механизмом, герметичность в этом случае необязательна. Внутрь второй камеры можно дополнительно вставить пружину или другие препятствия для сбора смолянистых веществ.
В камеру сгорания сверху засыпается щепа, которая поджигается через запальное отверстие. Образуется дым, который поступает через переходник в камеру конденсации и выгоняется из нее с помощью созданного эжектором потока воздуха.
Как правильно пользоваться дымогенератором и избежать распространённых ошибок
Дымогенератор – пожароопасный прибор, поэтому пользоваться им нужно с осторожностью, с учётом всех требований безопасности. Устройства заводского изготовления обычно оснащены системой автоматического отключения
За самодельным генератором нужно постоянно присматривать. Устанавливать прибор следует на твёрдую ровную поверхность, накрытую жаропрочным материалом.
Важно проследить, чтобы вблизи генератора не было легковоспламеняющихся предметов и электропроводки, которая может оплавиться от жара
Какие ошибки обычно совершают начинающие мастера копчения?
| Ошибки | Описание |
| Недостаточное количество соли | Если мясо, сало или рыба недостаточно просолены, они просто испортятся в процессе копчения. Если не знаете, сколько нужно соли, возьмите за основу норматив ГОСТ – 2,3% на каждый килограмм продукта. Если кажется, что солоновато,то уменьшите количество соли до 2%, но не меньше. |
| Много влаги | Нельзя коптить свежий продукт, он должен немного подсохнуть. Избыток влаги приведёт к тому, что мясо прокоптится только снаружи, а внутри останется сырым, так как влага не даст дыму проникнуть внутрь. |
| Использование обычной поваренной соли | Для сохранности копчёного продукта засаливать его следует в нитритной соли или смеси нитритно и поваренной соли. Только такой материал гарантирует качество продукта и отсутствие в нём ботулизма. |
| Пересушивание перед копчением | Для изготовления копчёностей мясо или рыбу следует подвялить в течение 6–10 часов перед копчением. Иначе вы получите жёсткий и сухой продукт. |
| Влажная щепа | Если вы будете использовать слишком влажную щепу или превысите объём поступающего в коптильню дыма, продукт получится почерневшим и горьким на вкус. Для копчения не используют опилки деревьев хвойных пород. Походит только щепа фруктовых деревьев, ольхи и бука. |
| Употребление сразу после копчения | После того как вы вынули продукт из камеры, он должен немного «проветрится». Для этой цели мясо или рыбу вывешивают на свежем воздухе на 10−12 часов. За это время уйдёт резкий запах, и немного изменится цвет. |
Как регулировать тягу в самодельном дымогенераторе?
Конструкция, сборка которой была описана выше, отличается неплохой эффективностью. Однако она имеет и один серьезный минус. При использовании такого дымогенератора трудно корректировать интенсивность горения. Единственный способ сделать это – изменить производительность нагнетателя воздуха (компрессора).
Эту проблему можно преодолеть, оснастив устройство дополнительным элементом – поддувалом. Для изготовления этой детали понадобится металлическая трубка, имеющая протяженность от 10 до 15 см. Ее необходимо приварить в нижней части корпуса дым машины. Своими руками изготовить поддувало не очень трудно, но стоит отнестись к этой работе серьезно.
После того как трубка будет приварена, следует выполнить в ней два отверстия, расположенных параллельно друг другу. Затем нужно подготовить металлический прут. Размер его сечения должен быть таким, чтобы можно было без труда продеть его через эти отверстия. На следующем этапе потребуется вырезать окружность из металлического листа.

Оснастив дымогенератор поддувалом, появится возможность регулировать тягу в самодельном агрегате
Организация поддувала позволяет существенно увеличить эффективность приборов. Такое решение подходит и для дымогенераторов без компрессора. Своими руками собрать такую заслонку очень просто. Главное – соблюдать геометрические параметры и последовательность действий.
Затем конец прута сгибается, что позволяет выполнить своеобразную ручку. Окончание работы по изготовлению заслонки подразумевает протягивание ручки через отверстие, выполненное в трубке, и приваривание металлического круга к прутку. Простота конструкции никак не отражается на ее эффективности. Регуляция размера просвета трубки позволяет корректировать количество воздуха, проникающего в дымогенератор.
Как собрать дымогенератор для холодного копчения своими руками: инструкция
При самостоятельной сборке дымогенератора рекомендуется не только обратить внимание на фотоматериалы, но и посмотреть обучающие видео на данную тематику. Конструкция прибора довольно проста
Поэтому любой человек, не обладающий специальными техническими познаниями, сможет выполнить сборку этого агрегата.

Для изготовления дымогенератора не нужно специального оборудования и материалов, можно собрать его из подручных средств
Существует определенная последовательность действий, которой стоит придерживаться. Любые отклонения от инструкции могут привести к допущению ошибок, которые отразятся на функциональности устройства при его использовании. Необходимо ознакомиться со сборкой дымогенератора поэтапно.
После составления чертежа дымогенератора для холодного копчения начинается непосредственная компоновка устройства. В первую очередь потребуется выполнить корпус прибора. Для этого нужно подготовить квадратный или круглый отрезок трубы. Длина изделия не должна превышать 1 м, иначе при его использовании возникнут проблемы с показателем тяги.
В верхней части такой трубки необходимо сделать крышку. Она нужна для свободного доступа к камере дымогенератора. Это позволит без труда засыпать опилки внутрь прибора, а также проводить его очистку. В свою очередь, внизу следует предусмотреть специальную емкость, которая будет собирать золу, образовавшуюся после переработки топлива.

Изготовляя дымогенератор своими руками, его можно оснастить съемным дном
Коптильня холодного копчения с дымогенератором отличается высокой функциональностью в том случае, если ее конструкция была проработана грамотно. Наиболее простые варианты дымогенераторов изготавливаются из трубки, к которой наглухо приваривается днище. Такие приборы не предусматривают наличия зольника, а их очистка производится очень просто: накопившаяся зола просто вытряхивается из устройства.
Более технологичные конструкции оснащаются съемным дном. Ниже его уровня располагают решетку, на которую падают продукты сгорания древесины. Через нее они попадают в зольник. Независимо от того, какой вариант конструкции был выбран, все они предусматривают наличие отверстия в нижней половине корпуса. Оно необходимо для того, чтобы обеспечить подачу воздуха к тлеющей древесине. Диаметр такого отверстия не должен быть больше 6 мм, иначе опилки могут попросту загореться, что навредит процессу копчения.
Как сделать дымогенератор: обустройство дымохода и эжектора
Дымоход необходим для доставки продуктов тления щепы в камеру коптильного агрегата. Располагается дымоход в верхней части дымогенерирующего устройства
Важно запомнить, что его выполняют не в крышке, а примерно на 8 см ниже края корпуса (верхнего)

Дымоходный элемент для дымогенератора лучше делать из стали, которая обладает более высокой теплопроводностью
Для этого в стенке дымогенератора следует сделать отверстие, которое должно соответствовать диаметру трубки. Затем она приваривается к прибору с использованием сварочного оборудования. Необходимо, чтобы длина металлической трубки имела достаточный размер для того, чтобы на нее можно было набросить пластмассовую трубку, по которой дым передвигается в коптилку. Рекомендуемая протяженность этого элемента составляет 7-8 см. Дымоход должен быть в обязательном порядке изображен в чертеже дымогенератора своими руками.
Следующий этап – сборка эжектора для дымогенератора своими руками. Коптилка холодного копчения получит достаточное количество дыма, если это приспособление будет собрано правильно.
Понять особенности установки эжектора помогут готовые чертежи дымогенераторов. Их без труда можно найти в интернете. Это устройство связано с компрессором, который нагнетает внутри него давление. Двигающийся воздух создает зону разряжения в этом элементе. В результате дым из эжектора проходит в дымоходную трубку.

Если расположить эжектор внизу прибора, то в устройстве не будет естественной тяги воздуха, так как камера для продуктов и бункер для опилок будут находиться на одном уровне
Рекомендации по копчению
Для хорошего процесса стоит придерживаться следующих рекомендаций и советов:
- лучше всего контейнер использовать такой, чтобы в нем помещалось 1,5 килограмма опилок. Именно такого количества хватит примерно на два дня горения;
- генератор лучше всего подбирать, которой работает от обычной розетки. Причем лучше всего предусмотреть его автоматическое отключение от сильного перегрева и в дальнейшем автоматического включения;
- подача дыма в основную камеру должна происходить в постоянном режиме;
- Температуру дыма можно регулировать подключением дополнительных трубок или их убирание;
- коптильная камера должна быть подобрана заранее. Если планируется постоянное использование аппарата, то лучше всего чтобы это было уже капитальное сооружение. Для примера можно использовать старый холодильник, Герметичность его дверцы будет как раз кстати;
- первое использование собранного агрегата лучше производить на маленьком количестве продуктов, чтобы потом не выбрасывать большое количество испорченных продуктов;
- все устройство должно быть пожаробезопасным. основание под ним лучше выбирать из негорючих материалов. Лучше всего если основание послужит ровный бетонный или кирпичный пол;
- шкаф для копчения должен быть герметичным, чтобы продукты получились вкусными и полезными.

Вот таким простым способом можно изготовить самый простой дымогенератор для коптильной установки.




Фильтр для изделия
Дым несет в себе много смолы и конденсата, которые при копчении попадают на продукты и негативно влияют на вкусовые качества. Существует несколько типов фильтров с дополнительной камерой и специальной насадкой из бутылок, устанавливающихся на переходную трубу от агрегата к камере коптилки.
В первом случае фильтр для дымогенератора холодного копчения изготавливают из трубы по аналогичным размерам камеры горения. Далее на фильтровом изделии внизу на крышке просверливают отверстие и нарезают резьбу. Берут металлическую крышку резьбовую, в центре которой сверлят дыру, а затем прикручивают ее к дну шурупами или просовывают болты и закручивают гайки. Достаточно просверлить 2-3 отверстия. К крышке прикручивается стеклянная банка – и конденсатор сделан.
В фильтровальную камеру помещается стержень, на котором располагаются с одинаковым расстоянием между собой 5-8 круглых пластин с мелкими отверстиями. Поверх стержня кладется стальная сетка для чистки посуды. Далее корпус закрывается крышкой.
Во втором случае дымоходная труба изготавливается зигзагообразной формы, а в середине канала монтируется бутылка, внутри которой помещены днища от пластиковой тары с вырезанными мелкими отверстиями. Эти дыры не должны совпадать друг с другом – наоборот, направлять отверстия следует в хаотичном порядке. В таком случае дым не пойдет по прямой, а будет врезаться в дымовой канал с множественными углами и препятствиями в бутылке.
В пластиковой емкости будет собираться конденсат, поэтому к низу тары припаивают переходник с резьбой и прикручивают бутылку объемом 1 л. Такая конструкция не только очистит дым от смолы, но и будет избавлять дым от конденсата.
Виды самодельных генераторов
Схемы самодельных дымогенераторов могут немного отличаться, но все они объединены общим устройством. Они включают камеру, в которой происходит процесс пиролиза, расположен источник нагрева, трубопровод для дыма и система охлаждения дыма. Изготовить устройство можно с применением подручных материалов. Можно сделать дымогенератор из огнетушителя, электроплитки или аквариумного компрессора. Рассмотрим эти и другие идеи подробнее.
Дымогенератор из электроплитки
Если идея домашней копчёной колбаски посетила вас только что, а заранее к ней вы никак не готовились, можно найти простой и быстрый способ: сделать его из электрической плитки. Все остальные детали можно поискать в сарае или гараже: бочка без дна или кусок жестяной трубы, кусок проволочной сетки, лист фанеры и щепа.
Практически на любой даче есть электроплитка, она и станет частью коптильни
Устраивать импровизированную коптильню лучше на улице, потом дома будет трудно избавиться от ароматов, которые пропитают все вещи. Устанавливают плитку в месте, до которого дотянется удлинитель. На электроплитку ставят бочку, в неё насыпают щепу. На 2/3 высоты бочка протыкается двумя арматурными штырями крест-накрест, на них укладывается сетка. Здесь будут подвешены ваши продукты. Сверху бочку накрывают листом фанеры или железа. Коптильня готова. Осталось только отрегулировать плитку на минимальную температуру, чтобы тлела щепа, и время от времени подкидывать в бочку свежий материал для пиролиза.
Процесс копчения с таким устройством не очень удобен тем, что нужно постоянно контролировать ситуацию, поднимать бочку для регулировки температуры, вынимать продукты для досыпки щепы
Такое устройство нельзя назвать правильным дымогенератором для холодного копчения, но для временного использования идея вполне подойдёт.
Генератор для коптильни из огнетушителя
Отличная идея для самодельного генератора дыма – использовать старый огнетушитель. У него нужно отрезать верхушку, она будет потом использоваться как крышка. Можно даже не убирать рычаг, он станет ручкой. Ниже среза в корпусе просверливаются два отверстия для доступа воздуха и выхода дыма.
Таким образом, вы получите генератор с верхним эжектором. Преимущество использования огнетушителя заключается в том, что он герметичен и прочен, имеет подходящий размер. Такая коптилка холодного копчения с дымогенератором, сделанная своими руками, может беспрерывно работать 10−12 часов.
Как сделать дымогенератор из огнетушителя в видеосюжете:
Как использовать аквариумный компрессор для дымогенератора
Мы уже говорили о том, что для работы небольшого генератора дыма можно использовать маломощный аквариумный компрессор. Для этой цели потребуется активный компрессор, то есть тот, который устанавливается снаружи аквариума. Погружные аквариумные фильтры для дымогенератора не подходят.
Такой прибор вполне сможет обслужить небольшую коптильню объёмом 15−20 литров. Он обеспечит достаточную подачу дыма. Лучше, если устройство оснащено регулировкой мощности подачи воздуха. Подсоединить компрессор своими руками для дымогенартора несложно: если у него есть два выхода для воздуха, нужно объединить подачу в один канал и вставить шланг в штуцер для подачи воздуха в эжекторе.
Подобная система может работать хоть круглосуточно, помпа потребляет мало электроэнергии
Можно пойти и другим путём: использовать вентилятор для дымогенератора. Для этой цели подойдёт компьютерный кулер, он обеспечит необходимое нагнетание воздуха. Подробности работы в этом видео:
Печка-дымогенератор для коптильни
Для коптильни большого объёма потребуется полноценная печь. Печку дымогенератора для холодной коптильни несложно сделать своими руками: это элементарная буржуйка с двумя уровнями для топлива: нижний− для дров и верхний – для щепы. В нижнюю часть закладывают пеллеты, дрова или ставят портативную газовую плитку, которая будет нагревать верхнюю часть с опилками. От верхней части идёт труба − дымопровод, от нижней – обычная вытяжка, как для печи.
Для понижения температуры дыма трубопровод охлаждают, закапывая в землю или делая водяную «рубашку». Чтобы дым поступал в коптильню, трубу располагают с наклоном в сторону печки
Дымогенератор для холодного копчения своими руками: чертеж
Составление чертежа – это необходимый подготовительный этап, который позволяет выполнить соответствующие расчеты и обозначить их на бумаге. В схеме обязательно обозначается корпус дымогенератора, который может иметь круглую или квадратную форму.
Корпус самодельного дымогенератора используется в качестве камеры, которая наполняется топливом. Стенки устройства обязательно должны обладать хорошей герметичностью. В противном случае дым, образованный при тлении опилок, будет рассеиваться в окружающее пространство.

Чтобы сделать дымогенератор для холодного копчения своими руками необходимо использовать чертежи
Сами устройства для копчения продуктов подразделяются на разновидности в зависимости от конструктивных особенностей и назначения. Сегодня можно встретить габаритные стационарные устройства или, наоборот, более компактные, переносные. В конструкции коптилки может присутствовать заслонка. Этот элемент позволяет увеличить приток воздуха в камеру, которая содержит топливо.
Самодельная коптильня холодного копчения может иметь две топки. Такая конструкция направлена на увеличение тяги в системе. Дымогенераторы используются как в горячих, так и в холодных коптилках. В чертеже указываются все составляющие элементы устройства. Обязательно нужно внести в схему эжектор и его размеры, а также компрессор.
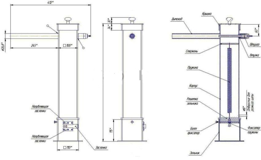
Как сделать дымогенератор своими руками: изготовление эжектора
Эжектор – это устройство, которое является трубкой и используется для создания необходимого показателя тяги в дымогенераторе. Данный прибор классифицируют по месту расположения. В зависимости от этого фактора можно выделить два типа эжекторов:
нижние;

Любой дымогенератор для коптильни холодного копчения состоит из контейнера, насоса (компрессора) и эжектора
верхние.
Первый вариант не рекомендуется специалистами для коптилок, изготовленных собственноручно. Это связано с тем, что такое размещение препятствует притоку воздуха, что, соответственно, отражается на тяге в конструкции. Трубки, установленные в нижней части, требуют постоянного контроля, что не очень удобно. При составлении чертежа дымогенератора необходимо заранее продумать расположение данной трубки и зафиксировать его на рисунке.
Избежать проблем с тягой довольно просто. Все, что для этого нужно, –разместить эжектор в верхней половине дымогенератора. Такой ход имеет несколько преимуществ. Установка эжектора в верхней части способствует увеличению объема зоны сгорания. Топливо, расположенное внутри камеры, тлеет медленнее в этом случае, а также уменьшается вероятность того, что оно потухнет.
Так производится сборка эжектора для дымогенератора своими руками. Чертеж, фото и пошаговая инструкция – все это позволяет выполнить грамотную сборку данного изделия.

Схема эжектора для дымогенератора холодного копчения
Из чего сделать компрессор для дымогенератора своими руками?
Компрессор считается одной из важнейших деталей прибора, который генерирует дым для копчения продуктов. Его можно приобрести отдельно, после чего присоединить к конструкции. Но чаще всего для этих целей используются различные подручные материалы, которые можно найти в каждой квартире или доме.
Статья по теме:
Нагнетатель воздуха своими руками можно выполнить из старого кулера. Данная компьютерная деталь как нельзя лучше подходит для увеличения притока воздуха в конструкцию. Необходимо соблюдать порядок действий по трансформации кулера в компрессор.
В первую очередь потребуется взять пластиковую бутылку и обрезать ее верхнюю часть. Далее с помощью клея следует присоединить вентилятор к внутренней части обрезанного пластикового элемента. С другой стороны (к горлышку) подключается шланг. Второй выход трубки подсоединяется к дымогенератору. Такая конструкция отлично справляется со своей функцией. Единственный ее минус заключается в непрезентабельном внешнем виде.

Компрессор для дымогенератора своими руками можно выполнить из старой компьютерной детали — кулера
Еще одним распространенным вариантом является покупка аквариумного компрессора для дымогенератора. Многие люди отмечают, что устройство для производства дыма может работать и без компрессора. Но эффективность такой установки ниже, так как воздух поступает в нее естественным путем.
Таким образом, для увеличения производительности рекомендуется собрать компрессор. Причем необязательно, чтобы он имел сложную конструкцию. Простой вентилятор для дымогенератора своими руками значительно упрощает копчение, а на его производство уходит не более часа.
Виды и технологии копчения
Технология копчения существует двух видов: горячее и холодное. При огромной температуре, достигающей 950 градусов, проводится горячее копчение. Холодное копчение производят при температуре не более 350 градусов.
Горячее копчение
При этом способе копчения продукты помещаются в специальную емкость, где одновременно запекаются и коптятся, проходя обработку горячим паром. Это довольно быстрый процесс, занимающий несколько часов. Продукция на выходе получается вкусная, ароматная и нежная. Однако после этого способа копчения продукты долго не хранятся.
Довольно просто можно сделать дымогенератор своими руками для коптильни горячего копчения (на фото). Обусловлено это тем, что охлаждение дыма не требуется, поэтому камера для копчения и дымогенератор могут быть совмещены.
-
Подойдет бочка, большая кастрюля или металлическое ведро с крышкой. На дно емкости насыпаются щепки или опилки. Коптильня ставится на электрическую плитку или огонь.
-
Одновременно происходит нагрев сырья и дымовое выделение.
-
При использовании водяного замка и имея хорошую герметизацию коптильни, особого контроля процесс копчения не требует.
-
Чтобы продукты не подгорали, необходимо будет только подобрать температурный режим.
Холодное копчение
При этом способе копчения требуется более тщательная подготовка сырья. Дымом в коптильне продукты обрабатываются более длительное время.
Перед закладкой мясо или рыба хорошо просаливаются, а после еще и подсушиваются. Недопустимо при холодном копчении применение мокрого сырья, так как в этом случае дым будет растворяться во влаге, а, значит, процесс приготовления затянется.
Примеры дымогенераторов























