Этап второй – сооружение каркаса строения
На готовый фундамент выполняется монтаж каркаса сооружения. Деревянная терраса изготавливается быстро даже в одиночку. Для работы потребуется строительный брус сечением 150х150 и 100х100 мм. Первый брус подойдет на нижнюю обвязку – основание пола веранды, второй – на стойки и опоры для перил.
Укладываем нижнюю обвязку
Брус сечением 150х150 укладываем на предварительно выстеленный рубероидом фундамент для террасы. Если размеры пристройки превышают 6 метров – стандартная длина пиломатериалов в нашей стране, придется сращивать элементы обвязки. Технология углового и продольного соединения бруса следующая:
- Отберите наиболее ровные, не поведенные пиломатериалы.
- На торцах разметьте запилы на половину толщины бруса. Длина будущего паза равна в нашем случае 150 мм.
- Пропилите брус по разметке с помощью ручного или механического инструмента – столярная ножевка, циркулярная или цепная пилы.
- Соедините детали паз в паз под углом или вдоль.
- Дополнительно усильте соединение, вбив по 2-3 гвоздя №150.
Во избежание возможного смещения каркаса террасы относительно основания (об этом стоит подумать на этапе возведения фундамента) в верхней части столбов или ленты оставляют несколько обрезков стальной арматуры диаметром 8 или 10 мм и длиной свободного конца 200-250 мм. Перед укладкой обвязки в точках выхода стальных стержней сверлятся отверстия большего диаметра, и брус укладывается на штыри, которые затем загибаются заподлицо.
После выполнения брусовой обвязки пола террасы по периметру, уложите аналогичным образом несколько поперечных брусков того же сечения, устанавливая в заранее размеченные и выпиленные пазы с шагом около 1 метра, скрепив их длинными гвоздями.
Устанавливаем стойки
Для опоры крыши веранды из дерева необходимо установить по внешним углам и вдоль длинной стороны, параллельной стене дома, несколько вертикальных брусков. Длина которых выбирается таким образом, чтобы высота крыши террасы от пола составляла не менее 2 метров, и соблюдался уклон кровли от основного строения.
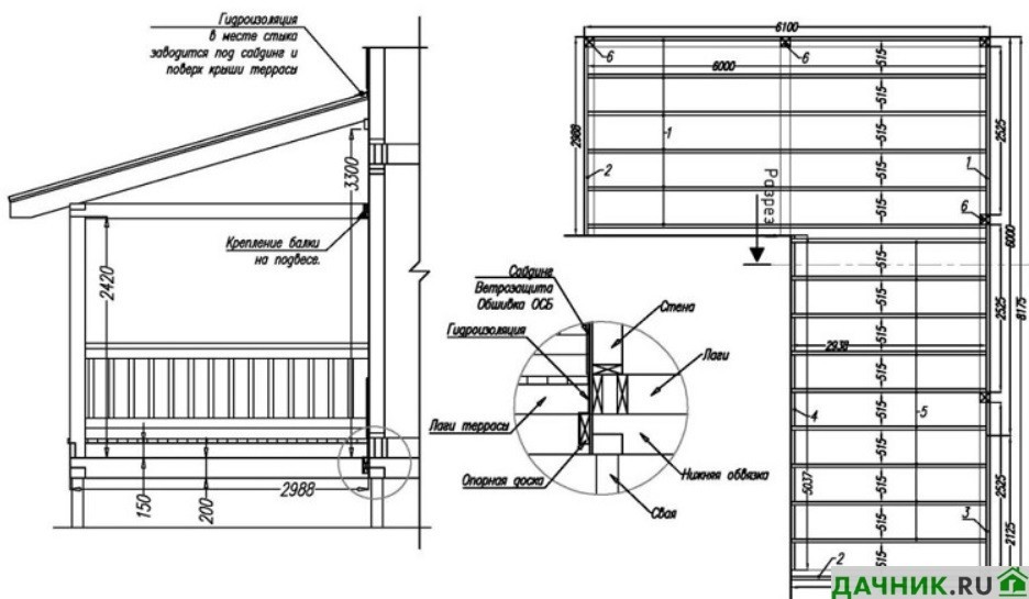
Схема соединения обвязки и стоек
Если брус обвязки террасы разрешается не строгать, то стойки обязательно должны быть предварительно простроганы электрорубанком. Это позволит придать им более эстетичный вид и упростит дальнейшую отделку и обработку веранды. Крепить стойки к обвязке следует саморезами с использованием усиленных стальных уголков. В верхней части торцы бруса крепят к обвязке террасы, которая представляет собой элемент каркаса, служащий для увеличения прочности конструкции веранды.
Верхнюю обвязку лучше сделать из строганого бруса 100х100. Сборка осуществляется на земле подетально, после чего устанавливается на торцы стоек и крепится к ним. При этом необходимо убедиться в перпендикулярности вертикальных деталей в двух плоскостях. Для этого используют отвес или строительный уровень.
Черновой пол
Деревянный пол.
Бетонный пол.
Есть два основных варианта, как его сделать: бетон и деревянные лаги. Первый способ намного проще, но потом пол придется дополнительно утеплять, так как бетон обладает большой теплопроводностью, и на веранде будет холодный пол как зимой, так и летом. Бетонная стяжка делается следующим образом:
- В подпол засыпают 10 см песка.
- Поверх песка насыпается аналогичный слой керамзита.
- Сверху на керамзит укладывается арматура, чтобы избежать трещин в полу.
- И на арматуру уже заливается бетон, состоящий из цемента, песка и воды.
Деревянный пол обладает хорошими теплоизоляционными свойствами и делается следующим образом:
- Пространство от земли до уровня фундамента заполняется керамзитом для утепления.
- На керамзит и фундамент надо положить двойной слой рубероида
- Лаги промазываются антисептиком и закрепляются на фундаменте.
На лаги прикрепляют обрезные доски.
Крыша веранды
Частью каркаса является стропильная система веранды. Установка стропил и обрешетки зависит от того, каким кровельным материалом будет покрыта крыша веранды.
С точки зрения конструкции выделяют такие виды крыш для веранды:
Схема односкатной крыши веранды
Односкатная крыша веранды.
Самый простой и оптимальный вариант. В данном случае стропильная система монтируется под углом от стены дома, что дает возможность дождевой воде или снегу беспрепятственно стекать вниз, не причиняя вреда постройке.
Примечание. Односкатная крыша удобнее с точки зрения организации водоотвода и соответственно, устройства водосточной системы.
Схема двухскатной крыши веранды
Двускатная крыша веранды.
В этом случае, веранда пристраивается к дому узкой частью. Она становится как бы проходной. Такой способ не нашел должного распространения. Чаще такая кровля возводится над террасой.
Многоугольная крыша для веранды строится таким образом, чтобы выдерживался угол наклона для стекания воды.
Монтаж стропильной системы веранды
Монтаж стропильной системы веранды — доска-прогонНа стене дома устанавливается доска-прогон (брус 100х80 мм). Крепится брус анкерными болтами. На него монтируются верхние части стропильных ног.
Монтаж стропильной системы веранды — мауэрдатПо периметру каркаса устанавливают мауэрлат. В небольших деревянных пристройках эту функцию выполняют доски верхней обвязки. На них устанавливаются нижние части стропильных ног.
Монтаж стропилНижняя часть стропил монтируется так, чтобы можно было обеспечить свес (вынос) кровельного материала, а значит защиту веранды от попадания стекающей воды.
Примечание. Расстояние между стропильными ногами зависит от уклона крыши, ширины веранды, веса кровельного материала.
Монтаж стропил верандыПри монтаже кровельной системы многоугольной веранды дополнительно устанавливается доска-прогон.
Установка стропильной системы верандыВ зависимости от выбранного материала набивают обрешетку (для металлочерепицы, ондулина, шифера) или делают сплошную обрешетку (для гибких кровельных материалов).
Фундамент для пристраиваемой конструкции
В качестве основания для сооружения чаще всего используют ленту или столбчатый фундамент, каждый их них обладает определёнными преимуществами и недостатками.
Ленточный фундамент
Представляет собой замкнутый контур из железобетона, возводимый под всеми несущими стенами постройки, который передаёт нагрузку от них на грунт. Он позволяет возводить деревянные, кирпичные и монолитные строения.

Рассмотрим поэтапное возведение:
- На выделенном под строение участке делается разметка с помощью колышков и веревки;
- По разметке для фундамента под пристройку к дому своими руками выкапывается траншея, зависит её глубина от залегания основания дома. Ширина нужна больше, чем толщина укладываемой стенки на 10-15 см;
- В траншею засыпается песчаный пласт в 10-12 см и утрамбовывается;
- На дно выкладывается гидроизоляция, которая выступает на поверхность почвы на 40-45 см;
- На гидроизоляцию устанавливается арматурная решётка, которая соответствует форме возводимого фундамента по ширине и высоте;
- Ленту заливают бетоном на ⅓ высоты, когда данный слой застынет, то укладывается второй на ½ оставшейся высоты;
- После заливки 2-го слоя устанавливается опалубка из древесины для возведения надземной части ленточного основания (цокольной части). Гидроизоляционный материал запускается внутрь опалубки и фиксируется к её стенкам;
- Опалубка заполняется бетонной смесью, в процессе укладки уплотняется возвратно-поступательными движениями куском арматуры или вибратором для предотвращения образования в нём пор. После заполнения всей опалубки поверхность бетона разравнивается по уровню;
- Далее бетон должен высохнуть и набрать 100%-ю прочность через 28 дней. Первые 3 дня его нужно смачивать через 2-3 часа водой. Затем он поливается 3 раза в сутки на протяжении 25 дней.
После затвердения основания опалубка снимается, поверхность покрывается снаружи материалами для гидроизоляции.

Столбчатый фундамент для пристройки к дому своими руками
Его применяют при постройке веранд и летних кухонь, обустраивают из красного кирпича либо бетона. На столбы в основном устанавливают каркас из древесины, на него настилают сам пол.
Возводится основание таким образом:
- Размечается выделенный для строительства участок. Столбы устанавливают с шагом 1,5 м;
- Для каждого столбика копается отдельная 50х50 см ямка с углублением на 50-60 см. К верху она должна расширяться на 10 см со всех сторон;
- На дно ямы насыпается подушка из слоя песка и щебёнки. Затем её дно и стенки покрываются гидроизоляцией;
- Если опоры из кирпича, то на дно ям укладывается слой раствора, на который после застывания кладётся первый ряд кирпича;
- Если опорные столбики из бетона, то в ямы устанавливают арматуру и опалубку на высоту опоры. Гидроизоляция запускается внутрь опалубки и крепится к ней;
- В установленную опалубку слоями заливают бетон. Причем каждый слой раствора должен нормально схватиться;
- Верх столбика разравнивают, бетон увлажняется водой до набора им марочной прочности;
- Опалубка демонтируется, столбы покрываются гидроизоляционным материалом (обмазываются битумной мастикой, на которую наклеивается рубероид);
- Пустоты между стенками ямы и опорой засыпаются перемешанным с щебнем грунтом, который плотно утрамбовывается.

На верх столбов укладывается рубероид для укрытия от воздействия влаги уложенных на них деревянных брусьев.
Чтобы пристроенная конструкция не отошла со временем, возводят её с небольшим наклоном в направлении дома. Уклон стенок по вертикали закладывается в 1 см на каждый метр высоты пристроя. Чаще всего уклон закладывается на этапе возведения основания.

Веранда на ленточном фундаменте
Ленточный фундамент – ответ на вопрос как пристроить веранду к дому, если обе конструкции идут тяжелыми и закрытыми. Тематическая подложка предохраняет основной фундамент от промерзания и корневищ. Но на ее строительство уходит больше средств, сил и времени:
- Сначала грунт надо традиционно подготовить – выровнять и расчистить;
- Далее можно приступать к замерам веранды и выкапыванию траншеи, которая повторяет форму пристройки (траншея имеет глубину 0,8-1,0 м и простилается под будущими стенами и между ними в несколько рядов);
- Следующий шаг – опалубка грунтовых стен деревянными досками;
- После опалубки траншея дополняется арматурой, а ее дно на 0,2 м засыпается дренажем;
- Арматура заливается цементным раствором.
При этом раствор должен доходить до самого верха траншеи и деревянной опалубки соответственно, чтобы поверх высохшей бетонной «ленты» можно было установить нижнюю обвязку. Для приготовления раствора используются цемент марок М300 или М400, крупнозернистый песок, очищенная вода, гравий. Последний применяется в качестве заполнителя, но должен быть некрупным, чтобы готовый фундамент не разламывался в отдельных местах.
Как пристроить веранду к дому: основные этапы работ, схожесть и различия
Вне зависимости от того, какой именно тип веранды планируется построить, большая часть работ идет по одной схеме.
- Подготовка участка. Запланированный для застройки участок расчищается, убирается весь мусор, проверяется состояние фундамента, стены дома и отмостки (если она есть) в данном месте. Если на этом участке проходят коммуникации, необходимо пометить место их расположения, чтобы не повредить в процессе стройки. Верхний слой грунта лучше снять, выкорчевать растения. Чтобы в дальнейшем корни не повредили постройку, желательно обработать грунт специальными составами.
- Разметка. В первую очередь размечается углы строения, далее по шнуру очерчивается периметр. Для столбчатых и свайных фундаментов ставятся метки под будущие опоры в соответствии с проектом, для ленточных – намечается ширина ленты.
- Выкапывается котлован/котлованы. Это касается только заглубленных фундаментов, винтовые сваи закручиваются в грунт без предварительной отрывки ям.
- Устраивается песчано-гравийная подушка. Этот вид подготовки проводится и для свайно-винтовых оснований, но насыпь выполняется вокруг уже смонтированных свай. Расстояние от оси сваи до внешнего края подушки – не менее 0,5 м. Если на участке грунт включает сыпучий песок, подушку можно частично заменить или дополнить слоем битума горячей заливки.
- Выполняется фундамент. Для столбчатых опор выполняются столбики из кирпича, блоков или монолитного бетона, ленточные основания заливаются в опалубку или монтируются из блоков. Верхняя часть ленточных или столбчатых опор обязательно защищается горизонтальной гидроизоляцией, подземная часть – обрабатывается рулонной или обмазочной гидроизоляцией. Ленточный фундамент или столбы «связываются» с фундаментом основного здания закладными на стадии армирования.
- Устраивается ростверк. Этот этап обязателен для столбчатых и свайных фундаментов.
- Монтируются стойки или выкладываются/отливаются колонны. Обязательна связь этих элементов с фундаментом закладными или другим крепежом. Прилегающие к стене стойки или колонны связываются с капитальной стеной. Для легких конструкций из металла или дерева связь можно не выполнять.
- Собирается верхняя и нижняя обвязка. Нижняя – только для легких каркасных конструкций. Для капитальных веранд из блоков, кирпича или монолита верхняя обвязка заменяется мауэрлатом, на который в дальнейшем будут опираться стропила.
- Собирается каркас крыши. Детальнее о связи стропил или ферм с верхней обвязкой (мауэрлатом) можно узнать из статьи.
- Выполняется настил крыши выбранным материалом. При любой конструкции обязательна гидроизоляция шва между кровлей и стеной дома. Желательно также устроить отвод воды и так называемый «дождевой фартук».
- Устраивается основание и настил пола. Наиболее популярным является настил террасной доски, декинга или шпунтованной доски по деревянным лагам.
- Монтируется ограждение веранды. Оно может быть легким или капитальным, в виде кладки или монолита, дополняться остеклением, москитными сетками, солнцезащитными элементами и так далее.
- Выполняется отделка.
С учетом разницы в материалах и квалификации строителей, длительность работ может составить от 2 дней до нескольких недель.
Ниже представлено видео по монтажу веранды своими руками из дерева:
Типы террас
Виды террас разнообразны и имеют отличия в каждой стране. Современные дома с террасой можно классифицировать:
- В зависимости от расположения террасы (на балконе, вокруг бассейна, на крыше или терраса пристроена к дому).
- Японская терраса (предназначено для созерцания, медитации). Акцент делается на гальке разных цветов и камнях, источнике воды, ступенях с вкраплениями плит, утёсов. Для того, чтобы ощутить этот эффект, необходимо увидеть фото террасы.
- Приподнятая терраса (более 60 см. от земли). Она расширяет «жилое» пространство дома наружу, делая его приятным. Это интересное решение при работе на неровной или наклонной поверхности.
- Открытая терраса является реальным связующим звеном между внутренним и внешним миром,
- Закрытая терраса (стенами и крышей, постоянными или нет), чтобы наслаждаться ею в любую погоду и в любое время года.
- Подвесная терраса (на сваях).
- Терраса Сен-Тропе (в деревенском стиле на маленьком участке). Терраса на крыше, представляет собой конструкцию, которая заключается в использовании ранее неиспользуемого чердачного пространства для создания террасы, часто заменяющей часть крыши дома.
- Терраса, примыкающая к дому
Нужно ли соединять террасу и жилой дом
В связи с особенностями возведения террасных сооружений решение о пристраивании к дому зависит от материалов, типа конструкции, особенностей рельефа, срока эксплуатации здания. Деревянной даче или коттеджу требуется не менее 3 лет до полной усадки стен и фундамента. Соединяйте пристройку только спустя этот период.
Лучший материал для ступеней для лестницы на улице и в домеКрасивая удобная лестница – украшение дома. Удобство, так же как безопасность, зависит от размера и высоты ступенек….
Терраса, пристроенная к дому должна иметь отдельный фундамент, чтобы исключить перекосы и деформацию. Чаще всего террасные сооружения возводят на утрамбованном почвенном субстрате, как отдельно стоящее строение.
Пристроить конструкцию к дому возможно, если она будет легкой, открытой, не иметь тяжелых элементов. В таком случае балки и стойки террасы возводят, как продолжение домовых стен. В связи с открытостью пролетов требуется предусмотреть водосборные и отводящие системы, расположенные под уровнем пола. Косые осадки могут подмывать фундамент при свободном скоплении под площадкой.
Примыкание крыши веранды
Веранда пристроенная к дому накрывается обычно тем же типом кровельного покрытия, что и лом. Вариантов может быть несколько и организация примыкания кровли зависит от того, как и к какой стене вы ее пристраиваете. Если крыша будет продолжением ската крыши дома, вам необходимо срастить две стропильных системы. В этом случае говорят, что крыша веранды примыкает к крыше дома.
Тогда порядок действий такой:
- К стойкам веранды крепятся верхние обвязки.
- К обвязке прибиваются поперечные потолочные балки. К ним потом подшивается потолок.
- Длинные стропильные ноги дома укорачиваются. Они не должны выступать за стену.
- Из строганной доски делают стропила веранды, которые со стороны крыши срезаются под углом так, чтобы они примыкали к уже имеющимся (смотрите на фото ниже). Чтобы было проще работать, можно сделать шаблон, по которому потом подготавливать стропила на земле. Стропильные ноги крепятся к системе дома насквозь гвоздями, можно сбоку поставить металлические усиливающие накладки.
- Для увеличения жесткости конструкции между стропилами дома и пристройки устанавливают распорки (противоснеговые опоры). Они отображены на фото, поясняющем конструкцию.
Примыкание стропильной системы крыши веранды к крыше дома
Если ширина веранды больше 2 метров или использоваться будет тяжелый кровельный материал, для того, чтобы опорная балка не провисала, устанавливают распорки. Их лучше не прибивать сбоку, а именно вставлять враспор между потолочной балкой и стропильной ногой.
Для того, чтобы исключить провисание крыши, устанавливают распорки между потолочными балками и стропилами
Чаще получается так, что кровля пристроенной к дому веранды примыкает к стене. В этом случае в стене делают штробу, в нее укладывается специальный пристенный профиль, который второй стороной укладывается на кровельной покрытие. Место примыкания его к стене заделывается герметиком.
Как пристроить крышу веранды к стене дома
Второй вариант отличается только формой пристенного профиля: его можно сделать самостоятельно из листа кровельного железа. Отличается эта конструкция наличием бруса, который позволяет отодвинуть изгиб от стены дома и прикрыть возможные погрешности при настиле кровельного материала в месте примыкания. Также в этом варианте фартук крепится не непосредственно к материалу стены, а к брусу со скошенным краем, вмонтированному в штробу.
Второй вариант примыкания крыши пристройки к стене дома
Некоторые вопросы могут возникнуть по тому, как крепить стропила к наружной верхней обвязке, ведь ее габариты не дают сделать врубки, как на мауэрлате. Решение обычное: при помощи уголков (смотрите фото). Вместо уголков можно использовать бруски небольшого сечения.
Способ крепления стропильных ног веранды к верхней обвязке
Может, не самое элегантное решение, но надежное. После того, как сверху все закроется кровельным покрытием, снизу подобьют вагонку, их видно не будет.
Стили оформления и особенности каждого
Стили оформления веранд и террас, пристроенных к дому, бывают разными. Это: современный и традиционный, пляжный и колониальный, деревенский стиль.

Современному стилю присущи минимализм и комфорт. Он предполагает лаконичность линий, строгость форм, простоту. Стиль дарит уют, обеспечивает комфорт. Мебель для оформления должна быть простой и при этом практичной. Декора нет или он присутствует в минимальном количестве. Обычно декоративную миссию выполняют функциональные предметы — светильники, подставки, столики. Для постройки такой веранды подходят камень, металл, ПВХ и композиты.

В традиционном интерьере декор как раз играет важную роль. Это может быть узорная ковка, сделанная своими руками, балясины, плинтусы разной конфигурации. В этом случае опоры заменяют колоннам, которые могут быть как круглыми, так и шестигранными. При строительстве веранды, пристроенной к дому, используются камень и дерево, у которого красивый рисунок. Например, красное дерево или кедр. Такой подход дарит помещению уют и служит оно долго.

Колониальный стиль самым удачным образом соединяет в себе мотивы классической архитектуры и колоритные элементы. Такой дизайн всегда практичен, удобен, он связан с красотой, симметрией. Интерьер предполагает декорирование цветами. В нем много элементов архитектуры, которые были позаимствованные в бывших колониальных странах. Так, например, это может быть скамейка оригинальной формы и конструкции или пергола, перила с балясинами.

Пляжный или прибрежный стиль оформления веранды подойдут для домов, построенных на берегу моря или водоема. Здесь любое строение должно гармонично вписываться в окружающие пейзажи. По возможности пристройка закрытого типа должно быть с видом на воду.

Домик в деревне предполагает строительство веранды из дерева и ее оформление в соответствующем стиле — с ткаными дорожками, занавесками с вышивкой, самоваром и глиняными горшками, простой и удобной мебелью.

Каковы отличия террасы от других конструкций?
Терраса в загородном доме представляет собой просторную площадку, которая располагается над землёй перед жилым домом. Простым языком подобное сооружение представляет собой строительную конструкцию.

Часто террасу воспринимают за веранду. Однако она относится к разновидностям террасы, но главное условие заключается в наличии крыши, плавно прилегающей к дому. Ещё одним требованием является наличие панорамного остекления по периметру сооружения. В таком помещении можно находиться зимой и холодной осенью.

Выделяют несколько видов террас:
Крытая. В устройстве конструкции присутствуют небольшой навес над обеденной зоной или местом отдыха.

Огороженная. Здесь имеется небольшой бордюр в виде декоративной решетки, которую покрывают вьющие зелёные растения. По периметру конструкции можно установить необычные статуи. Наверняка многие замечали такие ограждения возле морского побережья. Главное предназначение подобных конструкций заключается в панорамном виде окружающей среды.

Многоуровневая. Такая терраса может содержать в себе несколько уровней, соединяющихся между собой выступами и ступенями.


























По форме она делится на квадратную или прямоугольную. Большую террасу чаще всего выполняют по форме квадрата. Здесь удаётся компактно разместить зону отдыха, территорию для приема гостей. Прямоугольные предлагают для небольших территорий. Они тянутся вдоль жилого здания.


Мебель
Требования к выбору:
- Практичность – простой уход даст расслабиться, не переживая за пролитый сок или пятно.
- Устойчивость к изменениям температурного режима – позволяет не убирать изделия с веранды в основное помещение. Мебель можно установить в угол дома и закрыть чехлами для защиты от пыли.
- Надёжность – предметы обстановки требовательны только летом.
Подходят такие изделия, которые выдерживают все отрицательные воздействия давления.
Деревянные изделия
Органично вписываются в обстановку. Разнообразие большое. Производители предлагают такие предметы: стулья, столы, лавки, кресла, а также мебельные гарнитурные.
Сосна обычно используется для создания предметов мебели. Престижные изделия делают из дуба, клёна и ясеня. Все проходят обработку спец составами, которые образуют на поверхности древесины плёнку – она защищает материал от насекомых, высокой влажности, грибка. Долговечная и дорогая мебель из тика может находиться под открытом небом в течение круглого года. Под солнцем естественный оттенок древесины может бликовать.
Мебель из универсального пластика
Выполнена в традиционном или оригинальном виде. Надёжные изделия из литой пластмассы стоят меньше, но сохраняют нормальный вид в течение нескольких лет. Часто из пластика делают табуреты, стулья и столы.
Как сделать террасу?
Дизайн дома с террасой смотрится лаконичным и более уютным. Создать данную конструкцию можно своими руками при соблюдении рекомендаций специалистов. Они включают в себя:

Предварительно осуществляется разметка территории, на которой будет располагаться терраса. Возле дома делаем обратный уклон, чтобы жидкость не скапливалась возле бетонного фундамента.

После этого приступаем к выкапыванию траншеи для формирования стоек. Если опора будут изготавливаться из дерева их основания пропитывают гидроизоляционным и составами. После чего по периметру используют обмазочную гидроизоляцию. Благодаря ей удается предотвратить гниение древесины.

Заливаем бетон для опор. Оставляем его до полной кристаллизации на 4 дня. После чего можно приступать к формированию каркаса. Сначала монтируем балки для обвязки, а после чего приступаем к задним стойкам. Они будут крепиться к одной из стен здания.

Собираем ячеистый каркас из металлопрофиля. Для работы используется сварочный аппарат, позволяющий плотно зафиксировать железные элементы друг с другом.

Поверх каркаса осуществляем настил из деревянных досок. Крепим их саморезами.
Деревянный пол покрываем защитными составами. Для работы можно использовать прозрачный лак.

Приступаем к созданию навеса. Для работы используют деревянные лаги. Фиксируем их при помощи металлических уголков и саморезов к основанию террасы. Верхняя часть навеса должна плавно переходить в крышу помещения.

















Каркас для крыши изготавливают из деревянных досок. Они должны располагаться параллельно друг другу. Таким образом удается равномерно распределить нагрузку на конструкцию в процессе эксплуатации.

В качестве покрытия использованием сотовый поликарбонат. Для работы понадобится пятислойный тип отделочного материала. Он способен справиться с погодными катаклизмами и выдержать снежную массу.


В торцевой части крепим решетчатые перила. Покрываем поверхность лакокрасочными составами. На фото представлена готовая терраса.




















